Lot 41
Available

Boundaries are indicative only
$1,319,000
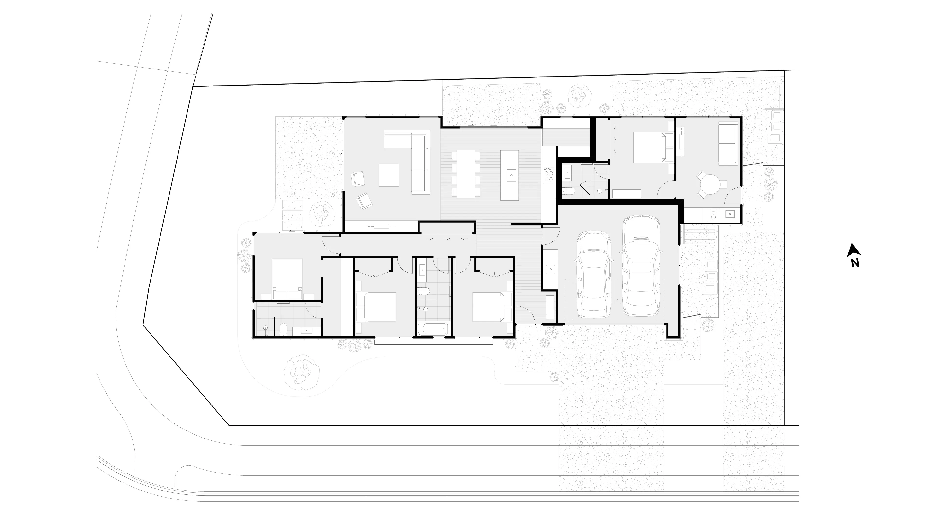
Multi-generational living, working from home, or earning separate rental income have never looked so good.
Why compromise on space? This stunning, architecturally designed home offers ultimate flexibility for modern living. Enjoy a contemporary, high-spec 3-bedroom family home with a luxurious mastersuite, plus a detached, private flat that provides the perfect solution for a teenage retreat, in-law accommodation, guest suite, or additional rental income. Enjoy the freedom of separated living spaces, with the assurance that everyone has their own space and independence, all under one roof.
















