Lot 8
Available
$1,260,000
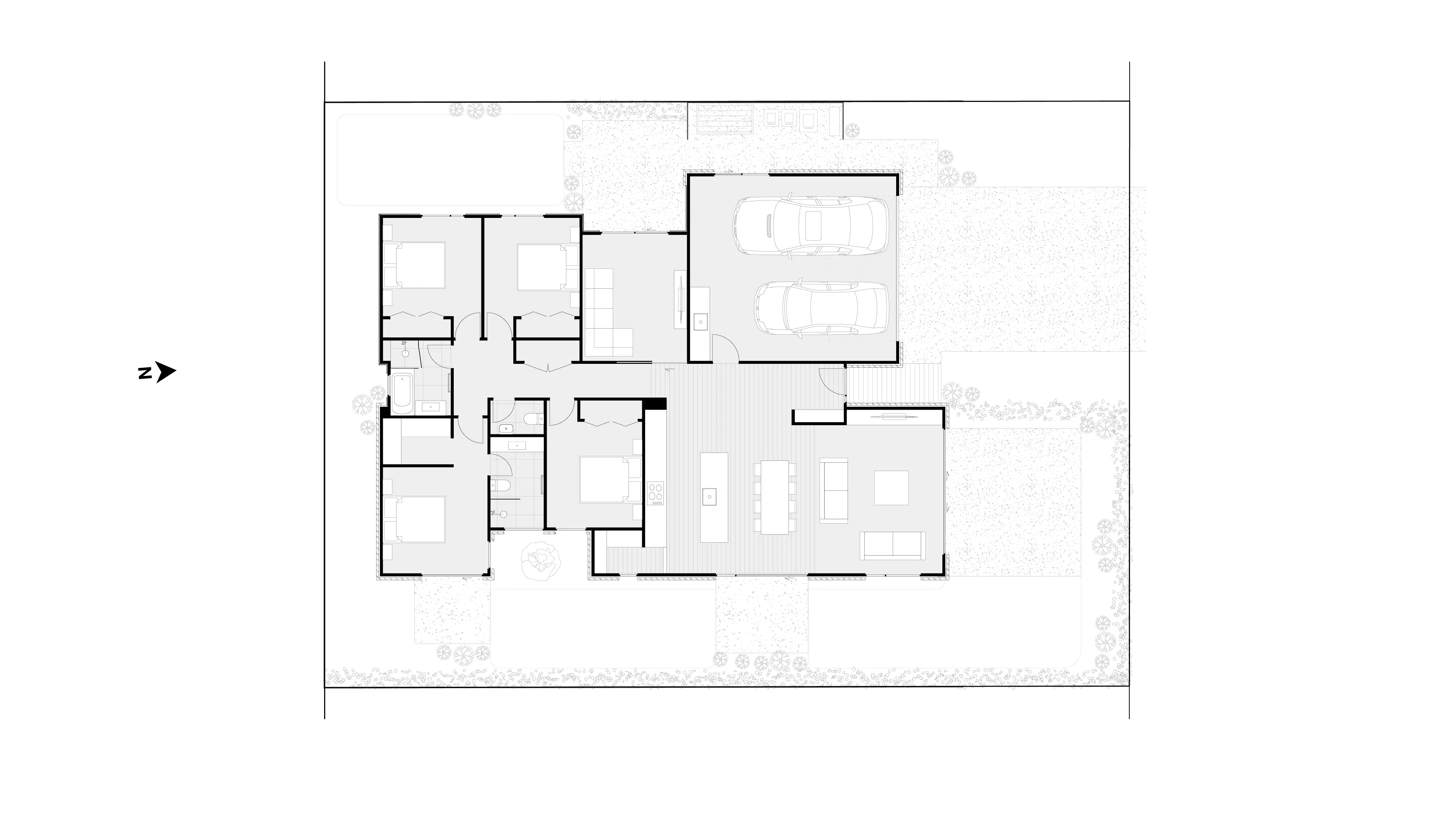
The double-pavilion style four-bedroom home, built by the Sanderson Group and Asset Building, has been beautifully designed for modern family living, combining contemporary style, comfort, and high-quality materials. Situated on a north-facing site, the living areas have been designed to maximise natural light, with raked ceilings, soft natural tones, and floor-to-ceiling windows and glass sliders leading to the patio.
















